House Plans - Custom Home Builder

We are a Licensed Florida Home Builder and have Home Plans to Meet your Needs

Here are some of the BCS Homes available. We are continuously updating and modernizing our house plans with the latest features. With several beautiful floor plans and many custom options to choose from, you can help us design your perfect new custom home to meet your family's needs. View our Standard Features to see the quality and details that set BCS Homes above the rest. Bryanco Services is both a Residential and Commercial Building Contractor, licensed in the state of Florida.


Available Floor Plans:

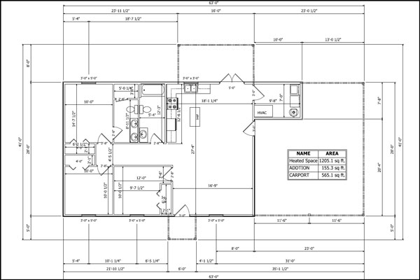
house plan 1 Click to Open PDF File
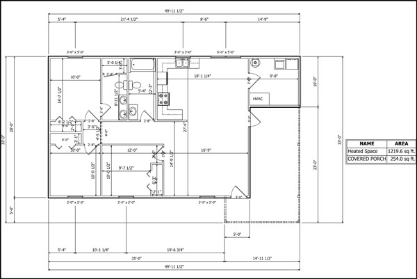
house plan 2 Click to Open PDF File